Public Comment for Planning Commission Items

Share Public Comment for Planning Commission Items on Facebook Share Public Comment for Planning Commission Items on Twitter Share Public Comment for Planning Commission Items on Linkedin Email Public Comment for Planning Commission Items link


  1. Below is a list of the public hearing items
  2. They include a brief explanation
  3. Click on them if you would like to leave a comment
  4. You may leave comments and read others comments. BE RESPECTFUL
  5. You may also ask questions about the projects to Staff

NOTE: You must register to leave a public comment. All it takes is a quick registration (2-3 minutes).


  1. Below is a list of the public hearing items
  2. They include a brief explanation
  3. Click on them if you would like to leave a comment
  4. You may leave comments and read others comments. BE RESPECTFUL
  5. You may also ask questions about the projects to Staff

NOTE: You must register to leave a public comment. All it takes is a quick registration (2-3 minutes).

  • Pioneer Village Preliminary Subdivision

    Share Pioneer Village Preliminary Subdivision on Facebook Share Pioneer Village Preliminary Subdivision on Twitter Share Pioneer Village Preliminary Subdivision on Linkedin Email Pioneer Village Preliminary Subdivision link
    CLOSED: This item is scheduled for City Council on May 27, 2025.

    Flagship Homes is requesting review and approval of the Pioneer Village Preliminary Subdivision. This is a 34-lot subdivision located at approximately 1300 West 1400 South.

    Click here to learn more or to leave an official comment.

  • Garrett's Flag Lot Conditional Use

    Share Garrett's Flag Lot Conditional Use on Facebook Share Garrett's Flag Lot Conditional Use on Twitter Share Garrett's Flag Lot Conditional Use on Linkedin Email Garrett's Flag Lot Conditional Use link
    CLOSED: This item was approved.

    The proposal is for the Garrett’s Flag Lot Conditional Use located at 450 E 200 S in the R-2 zone.

    Click here to learn more or to leave an official comment.

  • Comcast Traverse Mountain

    Share Comcast Traverse Mountain on Facebook Share Comcast Traverse Mountain on Twitter Share Comcast Traverse Mountain on Linkedin Email Comcast Traverse Mountain link
    CLOSED: This discussion has concluded.

    Adding comcast internet lines in several locations in Traverse Mountain.

    Click here to learn more or to leave a public comment.

  • Starbuck's Pylon Sign

    Share Starbuck's Pylon Sign on Facebook Share Starbuck's Pylon Sign on Twitter Share Starbuck's Pylon Sign on Linkedin Email Starbuck's Pylon Sign link
    CLOSED: This discussion has concluded.

    A proposed pylon sign at 2255 North 1200 West in the Commercial zone.

    Click here to learn more or to leave a comment.

  • Lehi Main Street Preliminary Subdivision

    Share Lehi Main Street Preliminary Subdivision on Facebook Share Lehi Main Street Preliminary Subdivision on Twitter Share Lehi Main Street Preliminary Subdivision on Linkedin Email Lehi Main Street Preliminary Subdivision link
    CLOSED: This discussion has concluded.

    Edge Homes is requesting approval of an 83-lot single-family home subdivision at approximately 2500 West 700 South. If you'd like to learn more, or if you have a question or comment, please click here.

  • 7-Eleven Concept Plan

    Share 7-Eleven Concept Plan on Facebook Share 7-Eleven Concept Plan on Twitter Share 7-Eleven Concept Plan on Linkedin Email 7-Eleven Concept Plan link
    CLOSED: This discussion has concluded.

    RFK Properties is asking for an exception to the Development Code for their proposed 7-Eleven concept plan. If you'd like to learn more about the project, or would like to leave a question or comment, please click here.

  • Hardman Lehi Subdivision Plat B Plat Amendment

    Share Hardman Lehi Subdivision Plat B Plat Amendment on Facebook Share Hardman Lehi Subdivision Plat B Plat Amendment on Twitter Share Hardman Lehi Subdivision Plat B Plat Amendment on Linkedin Email Hardman Lehi Subdivision Plat B Plat Amendment link
    CLOSED: This discussion has concluded.

    AWA Engineering would like to subdivide a lot at the corner of 2100 North and 3600 West into six lots for commercial development. If you'd like to learn more, or if you'd like to leave a comment or question, please click here.

  • Skyline Properties Plat Amendment

    Share Skyline Properties Plat Amendment on Facebook Share Skyline Properties Plat Amendment on Twitter Share Skyline Properties Plat Amendment on Linkedin Email Skyline Properties Plat Amendment link
    CLOSED: This discussion has concluded.

    K2 Electric would like to amendment the subdivision plat of the Skyline Subdivision on Boston Street. Click here if you'd like to learn more about the project, or to leave a comment.

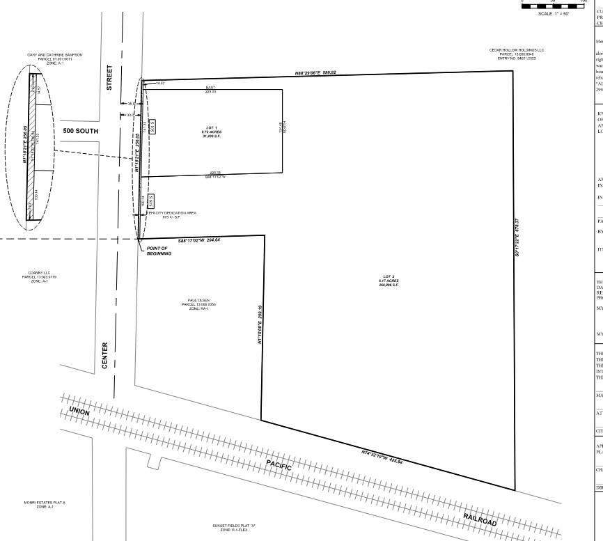
  • Olsen Farmstead Preliminary Subdivision

    Share Olsen Farmstead Preliminary Subdivision on Facebook Share Olsen Farmstead Preliminary Subdivision on Twitter Share Olsen Farmstead Preliminary Subdivision on Linkedin Email Olsen Farmstead Preliminary Subdivision link
    CLOSED: This discussion has concluded.
    supporting image

    The applicant is requesting approval of the Olsen Farmstead preliminary subdivision, a two-lot single family residential subdivision located at approximately 600 South Center Street.

    Click here to learn more or to leave an official comment.

  • Fabian House 2 Concept

    Share Fabian House 2 Concept on Facebook Share Fabian House 2 Concept on Twitter Share Fabian House 2 Concept on Linkedin Email Fabian House 2 Concept link
    CLOSED: This discussion has concluded.
    supporting image

    The proposed use is for a remodel of the existing home into a school building on the 0.85-acre lot. The purpose of this concept application is to receive approval for an exception to the Development Code to allow a surface parking lot along 200 S.

    Click here to learn more or to leave an official comment.

Page last updated: 14 Nov 2025, 01:55 PM