Webb Flag Lot

Share Webb Flag Lot on Facebook Share Webb Flag Lot on Twitter Share Webb Flag Lot on Linkedin Email Webb Flag Lot link

Consultation has concluded

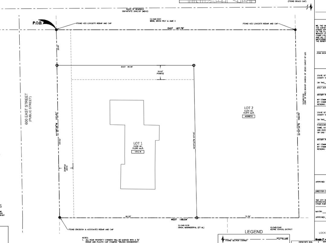
Taylor Butterfield wants to built a flag lot behind the Webb's home at 1312 North 600 East. The land is zoned R-1-Flex. The proposed flag lot will be approximately 9,500 square feet in size and have a 25-foot access width. These meet the requirements for a flag lot.

Lehi City Code requires an evergreen tree or shrub buffer as well as a six-foot sight obscuring fence on flag lots that are less than 10,000 square feet in size.

Because flag lots are a conditional use, it most likely has to be approved. But reasonable conditions (like the way the home faces) can be a requirement of the conditional use.

You can ask a question or leave a comment below.

Taylor Butterfield wants to built a flag lot behind the Webb's home at 1312 North 600 East. The land is zoned R-1-Flex. The proposed flag lot will be approximately 9,500 square feet in size and have a 25-foot access width. These meet the requirements for a flag lot.

Lehi City Code requires an evergreen tree or shrub buffer as well as a six-foot sight obscuring fence on flag lots that are less than 10,000 square feet in size.

Because flag lots are a conditional use, it most likely has to be approved. But reasonable conditions (like the way the home faces) can be a requirement of the conditional use.

You can ask a question or leave a comment below.

Public Comments

Provide your official comment to be exported and shared at the Planning Commission Regular Meeting.

Please remember to be civil and respectful to all residents, all commentators, developers and the Commissioners in your comments. All comments will be moderated before they are posted to this site. If anything is offensive it will not be posted here.

State Law requires the full name of all those who give comments. Please include your name with your comment.

You may wish to attend or watch the Planning Commission meeting when this item is discussed. You can watch it online at https://www.lehi-ut.gov/government/public-meetings/ 

Consultation has concluded
CLOSED: This discussion has concluded.