Skull Valley Flag Lot

Share Skull Valley Flag Lot on Facebook Share Skull Valley Flag Lot on Twitter Share Skull Valley Flag Lot on Linkedin Email Skull Valley Flag Lot link

Consultation has concluded

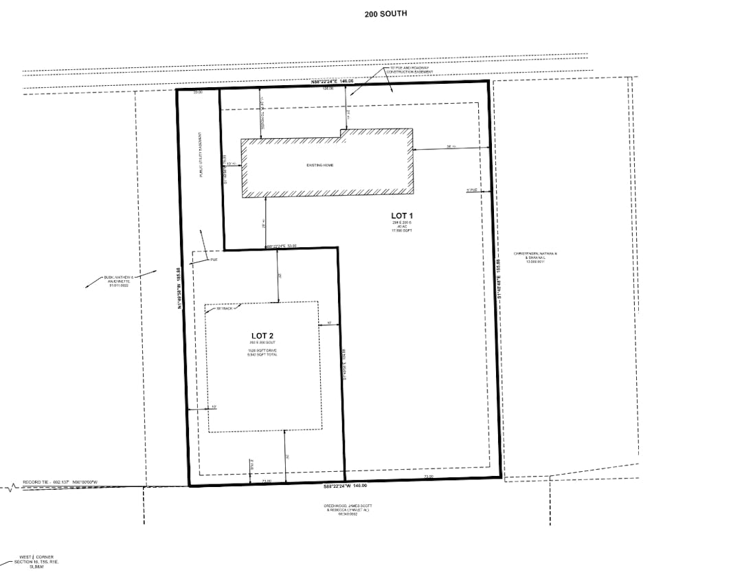
Holden Rockwell wants to create a flag lot at 208 East 200 South. This is in the R-2 zone. The proposed lot with the existing home will be approximately 17,500 square feet, the new lot will be approximately 9,500 square feet. Both meet the requirements of the R-2 zone.

You can ask a question or leave a comment below. Concerns about the location of the home, landscape buffer, and other similar comments are helpful. According to Code, the Planning Commission will have to approve the flag lot.

Holden Rockwell wants to create a flag lot at 208 East 200 South. This is in the R-2 zone. The proposed lot with the existing home will be approximately 17,500 square feet, the new lot will be approximately 9,500 square feet. Both meet the requirements of the R-2 zone.

You can ask a question or leave a comment below. Concerns about the location of the home, landscape buffer, and other similar comments are helpful. According to Code, the Planning Commission will have to approve the flag lot.

Public Comments

Provide your official comment to be exported and shared at the Planning Commission Regular Meeting.

Please remember to be civil and respectful to all residents, all commentators, developers and the Commissioners in your comments. All comments will be moderated before they are posted to this site. If anything is offensive it will not be posted here.

State Law requires the full name of all those who give comments. Please include your name with your comment.

You may wish to attend or watch the Planning Commission meeting when this item is discussed. You can watch it online at https://www.lehi-ut.gov/government/public-meetings/ 

Consultation has concluded
CLOSED: This discussion has concluded.