Ember Hotel Site Plan Exceptions

Share Ember Hotel Site Plan Exceptions on Facebook Share Ember Hotel Site Plan Exceptions on Twitter Share Ember Hotel Site Plan Exceptions on Linkedin Email Ember Hotel Site Plan Exceptions link

Consultation has concluded

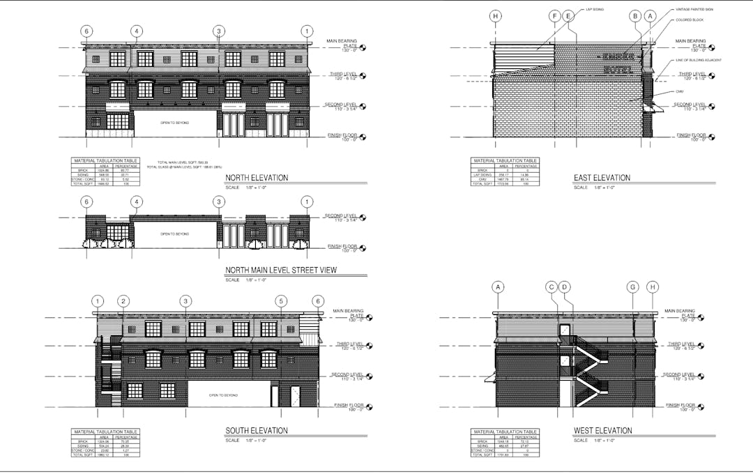
Steven Kelly would like to build a hotel at 26 East Main Street. Hotels are allowed uses, but the applicant is asking for some addition exceptions (a few were already granted on October 10, 2024). The applicant would like to an exception to having brick as the primary material on the east side of the building. It will be very close to the Hutch's building and not easily visible.

The applicant also wants an exception to the glass requirement. They have provided 36% glass on the front facing Main Street which is below the 50% required by Code.

The Planning Commission can grant these exceptions or not. You can ask a question or leave a comment below.

Steven Kelly would like to build a hotel at 26 East Main Street. Hotels are allowed uses, but the applicant is asking for some addition exceptions (a few were already granted on October 10, 2024). The applicant would like to an exception to having brick as the primary material on the east side of the building. It will be very close to the Hutch's building and not easily visible.

The applicant also wants an exception to the glass requirement. They have provided 36% glass on the front facing Main Street which is below the 50% required by Code.

The Planning Commission can grant these exceptions or not. You can ask a question or leave a comment below.

Public Comments

Provide your official comment to be exported and shared at the Planning Commission Regular Meeting.

Please remember to be civil and respectful to all residents, all commentators, developers and the Commissioners in your comments. All comments will be moderated before they are posted to this site. If anything is offensive it will not be posted here.

State Law requires the full name of all those who give comments. Please include your name with your comment.

You may wish to attend or watch the Planning Commission meeting when this item is discussed. You can watch it online at https://www.lehi-ut.gov/government/public-meetings/ 

Consultation has concluded
You need to be signed in to comment in this Guest Book. Click here to Sign In or Register to get involved