Bank of Utah Exception

Share Bank of Utah Exception on Facebook Share Bank of Utah Exception on Twitter Share Bank of Utah Exception on Linkedin Email Bank of Utah Exception link

Consultation has concluded

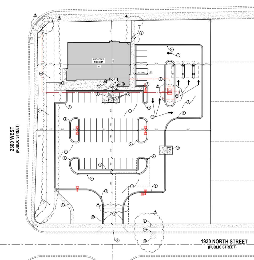
The Bank of Utah would like to build a new building on the corner of 2100 North and 2300 West. This is going to Planning Commission for an exception to the maximum building footprint (size of the first floor) of 5,000 square feet. This maximum footprint is because this lot is zoned Neighborhood Commercial. The bank is proposing a 5,625 square foot building footprint.

The public comment on this item should be related to the size of the building.

You can ask a question or leave a comment below.

The Bank of Utah would like to build a new building on the corner of 2100 North and 2300 West. This is going to Planning Commission for an exception to the maximum building footprint (size of the first floor) of 5,000 square feet. This maximum footprint is because this lot is zoned Neighborhood Commercial. The bank is proposing a 5,625 square foot building footprint.

The public comment on this item should be related to the size of the building.

You can ask a question or leave a comment below.

Public Comments

Provide your official comment to be exported and shared at the Planning Commission Regular Meeting.

Please remember to be civil and respectful to all residents, all commentators, developers and the Commissioners in your comments. All comments will be moderated before they are posted to this site. If anything is offensive it will not be posted here.

State Law requires the full name of all those who give comments. Please include your name with your comment.

You may wish to attend or watch the Planning Commission meeting when this item is discussed. You can watch it online at https://www.lehi-ut.gov/government/public-meetings/ 

Consultation has concluded
CLOSED: This discussion has concluded.